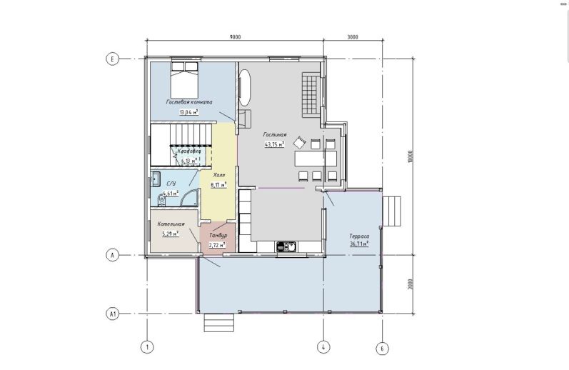
Популярнейший проект по мотивам известной "Обители Ангелов" архитектора Шильникова. Удачные и уже проверенные временем планировки. Идеальный набор помещений: 5 спален, 3 санузла, 2 гардеробных, кухня-гостиная в 43 м2. и терраса площадью 37 м2. Мы строим дома по этому проекту в любых комплектациях, в полностью и частично отзеркаленных вариантах, со "вторым светом" и практически любыми изменениями. На май 2025 года построен 31(!) дом по этому проекту.